5831 Lentz DriveParkville, MO 64152




Mortgage Calculator
Monthly Payment (Est.)
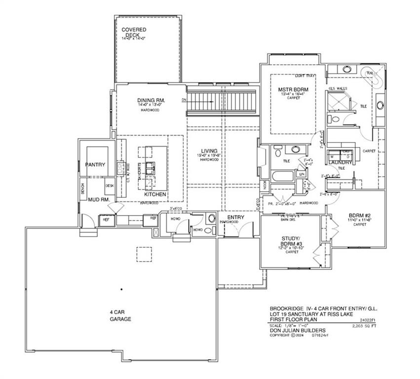
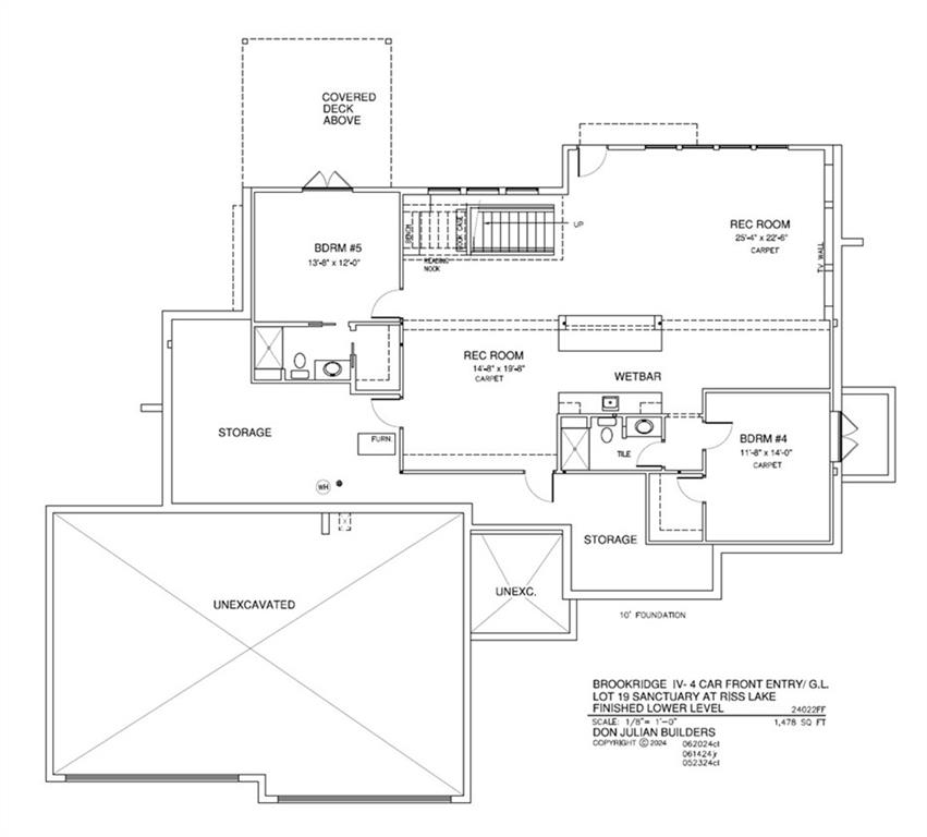
$7,642Brookridge !V Reverse by Don Julian Builders on walk-out lot and 4-car garage! UNDER CONSTRUCTION! New plan with many terrific features! Walk into the comfortable, large great room with beautiful fireplace and views of back yard. Enjoy one level living, if you need--THREE bedrooms on First Floor--Primary bedroom with large walk-in closet, connected to a laundry room--convenience! TWO additional bedrooms on the first floor--one easily could be office/den/study-flex space. Fabulous kitchen with wood ceiling and SKYLIGHTS, gas range, custom hood, big island. Handy mud room and HUGE pantry (use as back kitchen) with prep space, built-in desk (mini-office)--more flex spaces! Large dining room with door to covered deck. Lighted, wide stairs going down to Lower level with Rec room, (10' foundation), game area, wet bar for more entertaining spaces, TWO additional bedrooms, each with private bath. WALKS OUT to trees. Enjoy Riss Lake 134-acre lake for fishing and boating; 3 pools; splash pad, tennis courts with pickle ball lines; walking trails, basketball, more. Many welcoming water features throughout the community.
| 4 days ago | Listing updated with changes from the MLS® | |
| a month ago | Listing first seen on site |
The information displayed on this page is confidential, proprietary, and copyrighted information of Heartland Multiple Listing Service, Inc. (“Heartland MLS”). Copyright 2026, Heartland Multiple Listing Service, Inc. Heartland MLS and ReeceNichols-KCN do not make any warranty or representation concerning the timeliness or accuracy of the information displayed herein. In consideration of the receipt of the information on this page, the recipient agrees to use the information solely for the private noncommercial purpose of identifying a property in which the recipient has a good faith interest in acquiring.
Terms of Use
Last checked 2026-01-15 08:48 AM CST

Did you know? You can invite friends and family to your search. They can join your search, rate and discuss listings with you.